Holford Road, Merrow

Detached

Sold

A superbly presented character detached family home situated in one of Merrow’s most sought after residential locations within walking distance of Guildford’s most sought after schools covering all age groups.

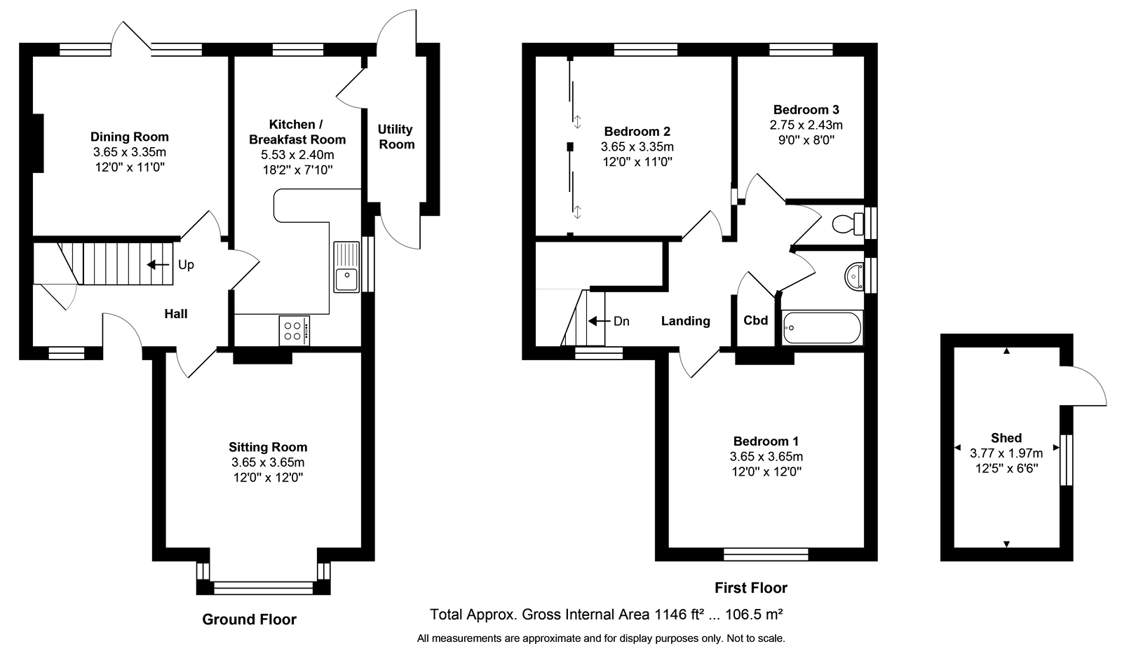
The property retains many character features including picture rails and original doors. The first floor offers three good-sized bedrooms, a bathroom and separate W.C. The ground floor includes a sitting room with wood burner, separate dining room and a fitted kitchen/breakfast room opening onto a beautiful, well established south-west facing garden with a brick built garden shed with power. To the front of the property, a driveway provides off street parking. The Merrow Downs, which is seconds away, offers stunning views across Guildford and miles of countryside for walking and cycling. There is potential to extend, subject to the relevant consents.

Merrow shops are within easy reach and provide a splendid range of local shops in addition to a regular bus service to Guildford. Schooling is excellent with several within walking distance including Boxgrove School, St Thomas of Canterbury, St Peters and George Abbot. 

Two supermarkets are close by at Burpham including Sainsburys Superstore and an Aldi. Guildford with it’s famous cobbled High Street and Castle is located approximately 2 miles away, providing an extensive range of leisure and recreational facilities with a wide range of shops, restaurants, the Yvonne Arnaud Theatre, a cinema complex, G Live, Surrey Sports Park and Spectrum Leisure Centre. 

Transport links are excellent with 3 stations including Clandon, London Road and the mainline station connecting to London Waterloo in approximately 37 minutes. The A3 is closeby linking to the M25 motorway, Gatwick and Heathrow Airports.

 

Key features

  • 3 bedrooms
  • 2 receptions
  • Kitchen/breakfast room
  • Utility room
  • Family bathroom
  • Off street parking
  • Stunning rear garden
  • Tenure Freehold
  • Council tax band F
  • EPC D

The area

Merrow is a north-east suburb of Guildford, centred 2 miles from the town centre, right on the edge of the ridge of hills that forms the North Downs. Merrow is an attractive location for families due to the excellent local schools, including Boxgrove Primary, St. Thomas of Canterbury and St. Peters, as well as its proximity to the town centre. Property styles vary but are predominantly 1930s family size homes.

Contact

Merrow Office

01483 347100

Email us

249 Epsom Road, Merrow
Guildford GU1 2RE

This website uses cookies

We use cookies to improve your experience and to provide us with insight into how people use our website.

To find out more, read our cookie policy.