Bookhurst Road, Cranleigh, GU6 7DW

Detached

£1,250,000

“What you notice straight away is the scale of the house and how it has been arranged to work in distinct sections, with the annexe set up so it can operate independently when needed. The size of the plot gives the house breathing space, and the existing planning permission adds further flexibility for how the property could evolve over time”.
Gavin Amberton — Chantries & Pewleys

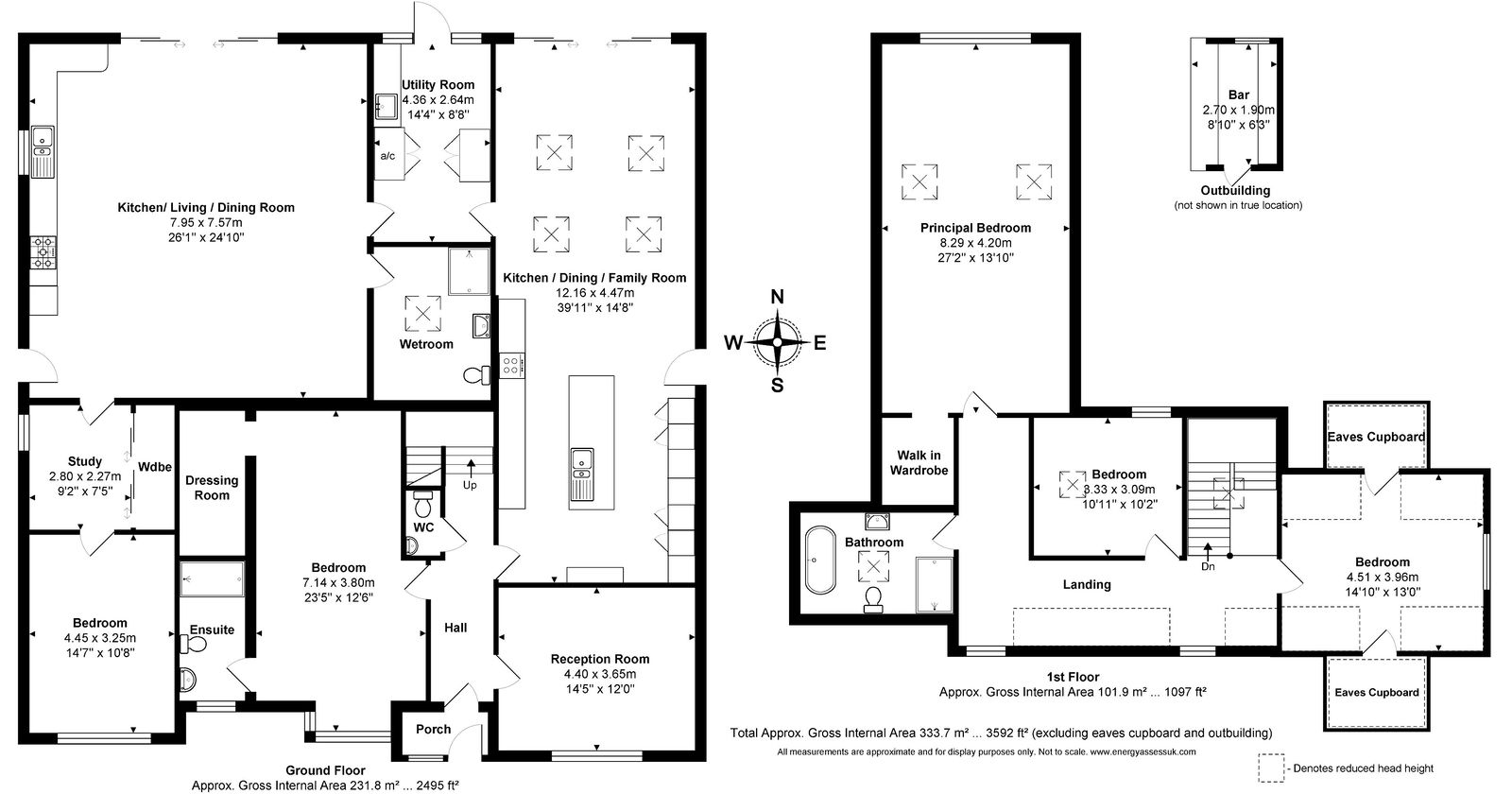
Set within a generous plot, this exceptional family home has been finished to an exceptional standard and extends to over 3,500 sq ft. The accommodation offers five bedrooms, three bathrooms, and three reception rooms, currently divided to provide a substantial annexe – ideal for multi-generational families or those working from home. The property also benefits from granted planning permission for a detached garage and the creation of an in-and-out driveway.

Local Area

The property is conveniently located to the west of Cranleigh, ideal for easy access to Guildford with its mainline station providing a fast service to Waterloo. Cranleigh is also approximately a 20 minute drive, equidistant from the neighbouring towns of Guildford, Godalming, Horsham and Dorking. The village has a busy High Street with restaurants, cafes, independent retailers including a renowned butcher, fishmonger, a health centre, library, leisure centre and arts centre. The area is surrounded by open countryside, with access to the Surrey Hills – a designated area of outstanding natural beauty – and the Downs Link, which provides excellent walking, cycling and horse riding. The property is also only a 5 minute walk away from Knowle Park, a new 60-acre country park and nature reserve in the heart of Cranleigh, featuring a lake, outdoor performance spaces, and an adventure park. There is also a choice of good schooling available locally, for both primary and secondary schools.

Key features

  • Stunning kitchen/dining/family room with vaulted ceiling
  • Annex with kitchen/dining/living room, wetroom, study & bedroom
  • Views over Cranleigh Showground to Wintefold Forest
  • Over half acre plot
  • Planning permission granted for detached garage and in-and-out driveway
  • Utility room
  • Landscaped rear garden with outdoor bar and hot tub

Contact

Cranleigh Office

01483 347888

Email us

Britannia House, 133 High Street
Cranleigh GU6 8AU

This website uses cookies

We use cookies to improve your experience and to provide us with insight into how people use our website.

To find out more, read our cookie policy.